Зона поперечного армування характеризується кількістю пакетів поперечної арматури, кроком між пакетами, складом пакетів і розташуванням у тілі балки вздовж осі.

Декілька зон (наприклад, три) формується при початковому створенні моделі армування балки (див. рис. 1). Межі між ними виразно помітні на епюрі матеріалів поперечного армування.


Рис.1. Изначально сформированные зоны и границы между ними.png

Рис.1. Початково сформовані зони та межі між ними

Якщо потрібна інша кількість зон, можна задати кількість у вікні редагування і натиснути кнопку «Перерозмістити зони поперечного армування». Розміщення кожного разу відбувається автоматично на приблизно рівних ділянках з урахуванням розрахункових вимог до поперечної арматури. При цьому результати ручного редагування природно втрачаються.

Нерідко виникає задача додати ще одну зону до наявних, щоб створити в якомусь місці балки особливе поперечне армування. При цьому хочеться максимально зберегти результати виконаної вручну роботи над проектом балки.

З чим пов'язане виникнення такої задачі? Аналіз епюр матеріалів дозволяє знайти резерви більш раціонального використання арматурного прокату. Нагадаємо, що на виді армування балки у проекційному зв'язку зі схемою армування представлені епюри матеріалів поздовжнього та поперечного армування. За умовчанням вгорі розташована епюра поздовжнього армування, під нею – епюра поперечного армування. Кожна епюра складається з двох частин: верхньої та нижньої. На епюрі поздовжнього армування у верхній частині представлена сумарна площа арматурних стержнів біля верхньої грані перерізу балки, у нижній частині – біля нижньої грані. Підсумовуються площі не всіх стержнів, а лише тих, що потрапляють у «залікову» область перерізу. Розміри залікової області визначаються значеннями параметрів моделі армування балки «Прив'язка до верху», «Прив'язка до низу». Кожен із цих параметрів визначає максимальну відстань центру ваги перерізу арматурного стержня від грані перерізу балки, відповідно, верхньої або нижньої. Якщо стержень опинився у перерізі балки не далі зазначеної відстані від грані перерізу, його площа враховується. Якщо ні, то ні. Ці цифри приходять із ЛІРИ-САПР після розрахунку разом із необхідними площами арматури. У ЛІРІ-САПР вони є характеристиками матеріалів для армування. Від обраного значення прив'язки залежить потрібна за розрахунком площа арматури в перерізі балки. Тому порівняння фактичного армування з розрахунковим буде коректним тільки у разі дотримання цієї умови. На епюрі заштрихована область - це розрахункове армування. Фактичне армування представлене ступінчастим графіком без штрихування. Епюра фактичного поздовжнього армування динамічно змінюється при зміні довжини, кількості, діаметру та положення поздовжніх арматурних стержнів. Враховується потрібне анкерування. Стержень враховується тільки у тій області, де він уже включився в роботу завдяки достатньому анкеруванню.

На епюрах поперечного армування вгору від осі відкладені значення ASW1, вниз – ASW2. Це відповідає напрямку шпильок у перерізі вертикально або горизонтально. Програма враховує кількість зрізів шпильок та хомутів, їх діаметри та крок проходження пакетів у зоні. Оскільки склад пакету – набір хомутів та шпильок, та крок слідування пакетів незмінні в межах зони, можна говорити про деяке постійне в межах зони значення площі поперечної арматури на погонний метр.

Спостерігаючи запас між фактичним армуванням та армуванням, необхідним за розрахунком, можна поставити собі задачу більш раціонального використання металопрокату.

Щоб вирішити цю задачу, спочатку розсуньте межі зон, що примикають, з потрібної області в різні сторони, щоб звільнити область для нової розкладки (див. рис. 2).

Епюри матеріалів теж можна вказувати мишею та переносити за допомогою контрольних точок, дотримуючись, однак, умов проекційного зв'язку із зображенням балки. Зручно працювати, коли актуальна епюра матеріалів розташована на екрані у безпосередній близькості зі схемою армування, як показано на рисунку.

Далі, помістіть січну площину будь-якого перерізу, наприклад «1-1», у позицію приблизно посередині потрібної області.

На виді "Переріз 1-1" тепер будуть позначені тільки поздовжні стержні, хомутів та шпильок немає, тому що область звільнена від поперечної арматури, січна площина опинилася в порожньому проміжку між зонами.


Рис.2. Подготовка места для новой зоны.png

Рис.2. Підготовка місця для нової зони

Вкажіть мишею зображення перерізу 1-1 на виді армування балки та виконайте подвійне натискання. По подвійному натисканню програма відкриває в окремому вікні вид «Переріз 1-1». Якщо на виді армування балки цей вид присутній як «фантом», тобто, вказується, переміщається, видаляється як ціле, то в окремому вікні на цьому виді можна виконувати редагування зображених на ньому елементів. Наприклад, можна вказувати та переміщати стержні поздовжньої арматури, коригувати їх властивості.

Тепер скористайтесь інструментом з меню «Деталі»: «Прямокутний хомут», «Довільний хомут», «Шпилька». За допомогою цих інструментів сформуйте пакет хомутів і шпильок у цьому перерізі (див. рис. 3).


Рис.3. Используйте инструменты меню Детали для создания хомутов и шпилек.png

Рис.3. Використовуйте інструменти меню «Деталі» для створення хомутів і шпильок

Повертайтеся до виду армування балки. Там, де розгортка балки буде позначена нова зона поперечного армування, в якій буде за умовчанням кілька пакетів (наприклад, п'ять) з деяким кроком (наприклад, 200 мм).


Рис.4. Редактирование вновь созданной зоны.png

Рис.4. Редагування новоствореної зони

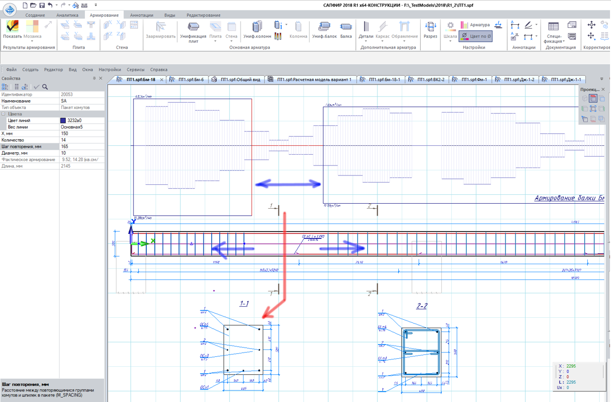
Тепер можна вказати нову зону на схемі армування балки, тим самим виділити її (див. рис. 4). Властивості виділеної зони відображаються у вікні «Властивості». Тут можна налаштувати крок, діаметр арматури, кількість пакетів. Контрольні точки виділеної зони допоможуть розмістити її належним чином у тілі балки вздовж осі: задати положення та розміри займаної області. При зміні розмірів області автоматично коригується кількість пакетів у зоні.

Фактичне армування, що відповідає поточному положенню зони та значенням її параметрів, відразу відображається на епюрі.

Отже, щоб створити нову зону розміщення поперечної арматури у балці, потрібно виконати три простих кроки:
  1. Підготувати в тілі балки на схемі армування область, вільну від арматури.
  2. Отримати вид перерізу в підготовленій області та створити на цьому виді бажаний пакет хомутів та шпильок.
  3. Повернутися до схеми армування, виділити новостворену зону і налаштувати її властивості: кількість і крок слідування пакетів, положення в тілі балки.

Помилка в тексті? Виділіть її та натисніть Ctrl + Enter, щоб повідомити нам.

Олег Палієнко

Провідний інженер-програміст компанії «ЛІРА САПР».
Розробка програмних комплексів.

Інші публікації цього автора


Коментарі

Написати