Программа КОМПОНОВКА — программа автоматизированного проектирования многоэтажных каркасных зданий из монолитного железобетона, а также зданий с кирпичными стенами.
 
Программа КОМПОНОВКА входит в состав Программного комплекса для автоматизированного проектирования железобетонных конструкций многоэтажных каркасных зданий МОНОМАХ-САПР

Работа с сетью и системой координат

Создание модели начинается с задания сети построения. Линии сети, как правило, это линии строительных осей здания, а также вспомогательные линии, которые облегчат в дальнейшем расстановку конструктивных элементов и расположение нагрузок по базовым узлам на плане здания.

Рис1. Работа с сетью и системой координат.png

Фрагменты сети могут быть заданы как в декартовой, так и в полярной системе координат. Сеть построения может состоять из любой комбинации фрагментов сетей и обеспечивать построение сколь угодно сложных планов.

Для облегчения указания координат элементов при построении схемы предусмотрены функции переноса и поворота начала системы координат.

Схемы этажей с сеткой координационных осей, конструктивными элементами могут быть созданы в AutoCAD и в виде dxf-файлов импортированы программой Компоновка. Также предусмотрен импорт модели здания из ArchiCAD.

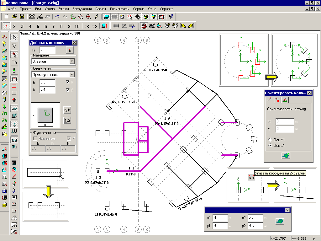
Расстановка колонн, балок и стен

Расстановка колонн (прямоугольных, круглых, уголковых, тавровых, крестовых) выполняется на базовых узлах схемы непосредственным указанием курсором одиночной и групповой отметки.

Рис2. Расстановка колонн балок и стен.png

Положение местных осей колонн может быть изменено в процессе корректировки. Расстановка балок и стен выполняется на базовых узлах схемы последовательным указанием узлов.

Если необходимый узел на схеме отсутствует, то задаются его координаты относительно текущего положения системы координат.

Добавление отверстий в стенах

Отверстия в указанной на схеме стене задаются в окне диалога. Выбирается нужная форма отверстия, задаются его параметры и привязка отверстия в плоскости стены. Отверстия можно копировать и перемещать в пределах стены.

Рис3. Добавление отверстий в стенах.png

Для задания одинаковых отверстий в стенах здания, в том числе и сложных, формируется база отверстий.

Задание плит перекрытий и отверстий в плитах

Создание контуров плит и отверстий в плитах выполняется на базовых узлах схемы последовательным указанием узлов.

Рис4. Задание плит перекрытий и отверстий в плитах.png

Если необходимый узел на схеме отсутствует, то задаются его координаты относительно текущего положения системы координат или последнего заданного узла контура.

В процессе корректировки контура можно добавлять новые, перемещать или удалять существующие узлы. С помощью механизма корректировки можно добавлять, переносить или удалять свесы, балконы, лоджии, эркеры, отверстия в плитах, изменять контуры плит и отверстий в плитах.

Задание нагрузок на плиты перекрытия

Распределенная по всей площади плиты нагрузка задается в момент создания плиты. Дополнительно могут быть заданы штампы нагрузок произвольной формы, а также линейно распределенные и сосредоточенные нагрузки.

Рис5. Задание нагрузок на плиты перекрытия.png

В постоянном, длительном и кратковременном загружениях, кроме вертикальных нагрузок, могут быть заданы горизонтальные нагрузки, например, нагрузки, моделирующие боковое давление грунта.

Нагрузки от ненесущих ограждающих конструкций могут быть заданы в виде линейно распределенной нагрузки или в виде конструктивного элемента (перегородки) с указанием материала. В этом случае конструктивный элемент отображается на схеме и нагрузка от него определяется автоматически. Материал перегородок выбирается из базы материалов и может быть произвольным.

Расчет этажа. Просмотр результатов в 3D

В начале расчета выполняется диагностика топологии схемы, что позволяет на ранних этапах ее создания устранить имеющиеся ошибки, такие как наложение и совпадение элементов, отсутствие необходимых опор и прочее. Расчет перекрытия этажа предназначен для сбора вертикальных нагрузок с плит перекрытия на опорные элементы – колонны, балки, стены.

Рис6. Расчет этажа. Просмотр результатов в 3D.png

Этот расчет, как и остальные в серии расчетов, производится на основе конечно-элементной схемы, которая формируется автоматически и скрыта от пользователя.

Нагрузки, полученные в результате расчета, отображаются на плане, а также в различных аксонометрических видах всего здания или его части.

Копирование и редактирование этажей

Многоэтажная модель, как правило, создается по такой схеме: задается схема типового этажа, затем выполняется копирование текущего этажа на другие, имеющие подобную схему. Изменения на этажах вносятся в процессе корректировки. Нетиповой этаж может быть задан «с нуля».

Рис7. Копирование и редактирование этажей.png

Для корректировки нужно вначале выбрать элемент или группу элементов на схеме, а затем выполнить их корректировку. Предусмотрены такие возможности редактирования как изменение свойств элементов и нагрузок, копирование и перенос разного вида (одиночное, множественное, с поворотом, зеркальное, с этажа на этаж), изменение длины элементов (балок, стен, линейных нагрузок), удаление, корректировка контуров и другие.

Возможность просмотра конструктивной модели в различных аксонометрических и перспективных видах позволяет оперативно контролировать редактируемую модель .

Задание фундаментов и фундаментных плит

Плитная часть отдельно стоящих фундаментов на естественном основании под колонны и стены подбирается автоматически для заданных характеристик грунта.

При наличии фундаментной плиты необходимо задать ее контур и вид основания. Основание фундаментной плиты – естественное или свайное поле назначается пользователем. Дополнительно при наличии свайного поля задается расстановка и расчетные параметры свай.

Коэффициенты постели, характеризующие естественное основание, задаются в момент создания фундаментной плиты.

Рис8. Задание фундаментов и фундаментных плит.png

Можно задавать несколько фундаментных плит. Предусмотрена возможность задания отверстий в фундаментных плитах. Таким образом, можно задавать не только плитные, но и ленточные фундаменты под здание, а также отдельные ростверки.

В качестве основания может использоваться модель грунта, созданная на основе параметров заданных скважин в программе Грунт. В этом случае характеристики грунта, коэффициенты постели и жесткость свай, будут определяться автоматически по данным модели грунта, привязанной к зданию.

Расчет общей схемы здания

Кроме вертикальных и горизонтальных нагрузок, заданных на плиты перекрытия, можно задать горизонтальные нагрузки на все здание от ветровых и сейсмических воздействий. Для этого достаточно указать направления их воздействия и район площадки строительства. Направление воздействия может быть произвольным.

Рис9. Расчет общей схемы здания.png

Пространственная расчетная схема здания формируется автоматически. Шаг триангуляции стен и плит регулируется пользователем. Он может быть разным на разных этажах здания. Изменяя шаг триангуляции можно быстро создавать варианты расчетных схем для одной и той же модели.

Этот расчет обеспечивает мощный расчетный процессор аналогичный процессору, используемому в ПК ЛИРА-САПР.

Анализ результатов расчета

В процессе расчета определяются перемещения узлов и усилия в элементах. С помощью экспертной программы проверяются сечения элементов. По результатам расчета выполняется построение эпюр, полей и мозаик усилий. Исследованию состояния конструкций способствует просмотр деформированной схемы и анимации форм колебаний.

Подсчитывается расход материалов. Оформляется текстовый файл расчетной записки с результатами расчета.

Для дальнейшего проектирования и создания чертежей, данные об элементах (колонны, балки, плиты перекрытия и фундаментные плиты, фундаменты, стены по заданным разрезам) экспортируются в программы конструирования.

Нагрузки на отдельно стоящие фундаменты можно экспортировать в ФОК ПК.

Для создания уточненной расчетной схемы, которая в некоторых случаях не может быть реализована непосредственно в программе Компоновка, предназначена возможность экспорта расчетной схемы в ПК ЛИРА-САПР. 

Рис10. Анализ результатов расчета.png

МОНОМАХ-САПР 2013. Учебное пособие: Электронное издание

МОНОМАХ-САПР. Презентация


Заметили ошибку? Выделите ее и нажмите Ctrl+Enter, чтобы сообщить нам.

  • 3734K
Поделиться публикацией:


Комментарии

Написать