Армирование железобетонной балки в САПФИР-ЖБК представлено продольной и поперечной арматурой. Балка как конструктивный элемент для расчёта разбивается на множество конечных элементов. Их может быть, например, пять, десять, двенадцать или больше. В рамках каждого конечного элемента рассматривается несколько сечений, например, три. ЛИРА-САПР, исходя из расчётных сочетаний нагрузок/усилий, вычисляет требуемое количество арматуры в каждом сечении балки.

Рис.1. Армирование балки прямоугольного профиля.png
Рис.1. Армирование балки прямоугольного профиля

Армирование балки прямоугольного профиля (см. рис. 1) в каждом сечении характеризуется следующими вычисленными значениями:

AU1, AU2, AU3, AU4 – площади продольной арматуры в каждом углу сечения.

AS1, AS2, AS3, AS4 – суммарные площади продольной арматуры у каждой грани сечения.

ASW1, ASW2 –площади сечения поперечной арматуры, расположенной вертикально и горизонтально.

Вычисленные значения в качестве исходных данных передаются в САПФИР-ЖБК в виде файла с расширением ASP. Это двоичный файл, в котором представлено теоретическое армирование по одному варианту конструирования. ЛИРА-САПР поддерживает множественность вариантов конструирования. В файл записывается тот вариант, который в момент экспорта является текущим. Информация по нему в этот момент представлена в графическом окне ВИЗОР-САПР в виде мозаики армирования. Последовательно выбирая варианты конструирования, можно под разными именами сохранить соответствующие им ASP-файлы. Любой из этих файлов можно загрузить в САПФИР-ЖБК в качестве источника информации о теоретическом или расчётном армировании, то есть таком, которое определено по расчёту.

В процессе работы над проектом в САПФИР-ЖБК формируется модель армирования, которая отражает проектное расположение арматурных деталей (стержней, хомутов, шпилек) в пространстве конструктивного элемента (балки). Если возведение конструкции будет осуществлено в соответствии с этим проектом, то мы по факту получим балку, модель которой наблюдаем на экране компьютера. То есть, мы можем говорить о некотором «фактическом» армировании.

САПФИР-ЖБК помогает конструктору в процессе создания проекта, предоставляя инструменты для сопоставления теоретического и фактического армирования. На основе анализа результатов такого сопоставления конструктор принимает решение о необходимости внесения тех или иных изменений в проект в ходе поиска рационального варианта конструкции.

Рис. 2.png
Рис. 2.

Одним из таких инструментов являются эпюры материалов. При рассмотрении модели армирования балки САПФИР-ЖБК предоставляет по сути восемь эпюр, которые для удобства собраны в две группы: одна группа отражает ситуацию с продольным армированием, вторая относится к поперечному. При указывании в графическом виде эпюры подсвечиваются цветом выделения. В окне «Свойства» при этом демонстрируются свойства модели армирования балки. В графическом виде предоставляются контрольные точки для позиционирования каждой группы эпюр в пределах вида армирования балки. Эпюры вычерчены в проекционной связи с изображением балки, в одинаковом масштабе по длине. Это помогает сопоставлять иллюстрируемые эпюрами характеристики армирования с теми или иными участками балки. Для удобства можно приблизить ту или иную эпюру к изображению балки, совместить с осью или с некоторым стержнем, вынести за пределы изображения, чтобы избежать наложения обозначений и т.д.

Группа эпюр материалов продольного армирования представлена четырьмя эпюрами. Вверх от оси отложены площади стержней у верхней грани балки в сумме с верхними угловыми (AS2+AU3+AU4). Вниз от оси отложены суммарные площади арматурных стержней у нижней грани (AU1+AU2+AS1). В обоих направлениях (и вверх, и вниз) показано теоретическое армирование в виде заштрихованного графика и фактическая эпюра материалов в виде ступенчатой диаграммы. График теоретического армирования представляет собой линейно интерполированную огибающую, сформированную по результатам расчёта, импортированным из ASP-файла. Ступенчатая диаграмма фактического армирования формируется путём суммирования сечений арматурных стержней, работающих на каждом участке балки. Стержень считается «работающим» на некотором участке, то есть таким, площадь сечения которого засчитывается, если выполняются условия анкеровки и геометрического расположения относительно опалубки.

Арматурные стержни в бетоне только тогда могут воспринимать напряжения, когда исключается возможность их проскальзывания. Для предотвращения проскальзывания должна быть выполнена надёжная анкеровка. САПФИР-ЖБК предусматривает следующие способы осуществления анкеровки: сцепление прямых стержней с бетоном за счёт дополнительной длины, анкеровка крюками или лапками, приваркой анкерных пластин. Для определения величины необходимого дополнительного продления стержня в САПФИР-ЖБК существует таблица анкеровок и перехлёстов, которую можно редактировать с помощью диалога «Арматура» (см. рис.3). На протяжении этой длины вблизи концов стержня считается, что он не работает. При других способах предполагается, что конструктор задал такие параметры крюков, лапок или пластин, которые обеспечивают надёжную анкеровку, и стержень включается в работу на всей длине.

Рис. 3.png

Рис. 3.

Касаемо геометрического расположения стержней надлежит сообщить следующее. Как известно, арматура работает тем эффективнее, чем дальше отнесена от нейтральной линии сечения и ближе расположена к опалубке. Существует параметр «Толщина защитного слоя», который непосредственно, через половину диаметра, связан с величиной «Расстояние от грани опалубки до центра тяжести стержня». Прочностной расчёт и подбор арматуры выполнялся с учётом некоторого наперёд заданного значения этой величины. Поэтому полученные цифры теоретического армирования предусматривают, что это значение не превышается. Соответственно «в зачёт» пойдут только те стержни, для которых выполняется условие:

Dф ≤ Dmax,

где Dф – фактическое расстояние от центра тяжести данного арматурного стержня до грани опалубки, Dmax – максимальное расстояние от центра тяжести арматуры до грани опалубки, принятое для расчёта. Dф определяется автоматически путём геометрического анализа модели армирования балки. Разумеется, не все стержни будут охарактеризованы одинаковым значением Dф. Любое превышение максимального значения автоматически «выключает» стержень. Стержни с меньшими значениями Dф (расположенные ближе к опалубке) работают «в запас».

Группа эпюр материалов поперечного армирования построена примерно по тем же принципам. С той разницей, что вверх от оси отложена площадь вертикальной поперечной арматуры, а вниз от оси – горизонтальной. Эпюра теоретического армирования представляет собой огибающую ASW1 или ASW2, соответственно. А диаграмма фактического армирования построена с учётом зон размещения поперечной арматуры, расположенных на каждом участке балки. В расчёт принимается диаметр арматуры, количество срезов, шаг размещения вдоль балки.

САПФИР-ЖБК позволяет получать в отдельных видах поперечные сечения балки в любом заданном месте. Если место, где прошла секущая плоскость, находится в пределах некоторой зоны размещения поперечной арматуры, то в графическом виде мы получаем не только сечения продольных стержней, но и изображение хомутов и шпилек на фоне контура поперечного сечения балки. Группа из нескольких хомутов и шпилек представляет собой пакет деталей поперечного армирования. Для такого пакета можно определить число срезов в каждом направлении. Зная диаметр арматуры каждой детали, автоматически получаем площадь сечения поперечной арматуры в одном пакете. В пределах зоны задан шаг следования пакетов. Исходя из этого, определяется фактическая площадь поперечной арматуры на погонный метр балки в обоих направлениях (в вертикальном и горизонтальном).

Здесь неоднократно использовался термин «огибающая», предполагая выборку максимальных значений по длине балки в модели армирования. Выборка производится среди экземпляров заданной марки. Несколько балок в рамках одного проекта могут иметь сходную картину напряжённо-деформированного состояния и, как следствие, сходные расчётные требования к армированию. Это вполне может послужить поводом, чтобы объединить их под одной маркой и, тем самым, назначить им общую модель армирования. Естественно, это возможно только при условии совпадения их геометрических характеристик: длина балки, форма и размеры сечения. Для выявления балок – кандидатов на объединение под одной общей маркой служит инструмент «Унификация балок». Пользовательский интерфейс этого инструмента представлен в одноимённом диалоговом окне (см. рис. 4).

Рис. 4.png

Рис. 4.

В правой части диалога расположена графическая область, демонстрирующая эпюры материалов армирования балки по тем же принципам, что и на виде армирования балки. Только здесь нет схемы расположения стержней на фоне изображения опалубки. Зато есть возможность увидеть одновременно эпюры для нескольких балок, чтобы сравнить их. Балки, эпюры которых требуется сравнить, следует выбрать флажками в списке балок, расположенном в левой части диалога. Каждая выбранная балка получает индивидуальный цвет изображения эпюр, что позволяет легко сопоставлять графически представленные данные с конкретными экземплярами балок.

Справа, сразу под эпюрами, расположен список моделей армирования. В этом списке приведены те модели армирования, которые подходят для выбранных балок по критериям одинакового сечения и длины. Выбор модели из списка также осуществляется с помощью флажка. Эпюра материалов выбранной модели армирования изображается в виде ступенчатой диаграммы в графической области. Ступенчатая диаграмма материалов изображена в бледно-серых оттенках и служит фоном для цветных изображений эпюр теоретического армирования. Визуально легко определить, укладывается ли расчётное теоретическое армирование в пределы, обозначенные диаграммой материалов. Для более точного анализа в цифрах служит инструмент динамических линеек, которых по умолчанию изначально три, но можно добавить и больше. Каждая линейка фиксирует некоторую координату x, для которой в таблицах приводятся значения площади арматуры: в таблице балок – теоретическая, в таблице моделей армирования – фактическая. С помощью курсора, управляемого мышью, можно перемещать линейки в характерные позиции и сравнивать получаемые показатели.

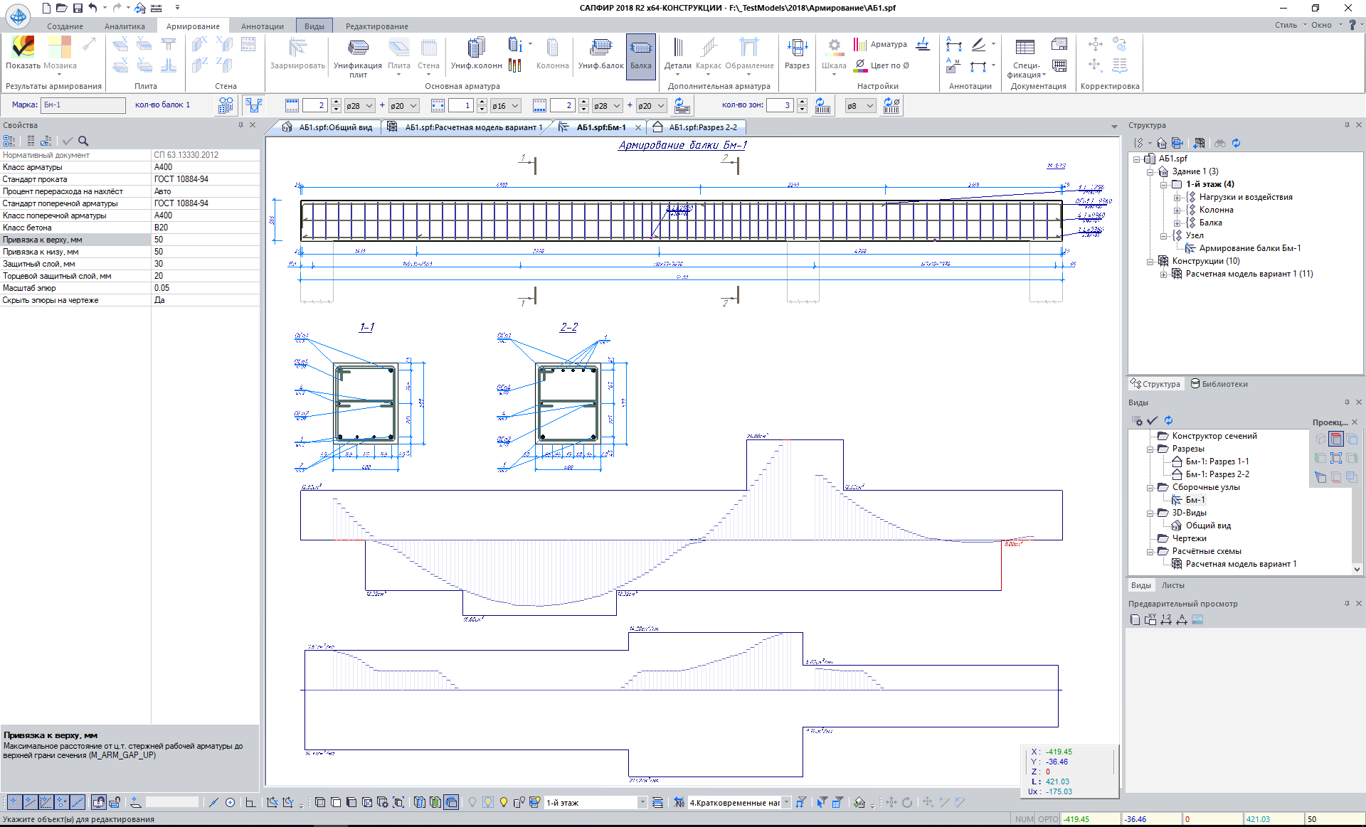
Когда мы говорим здесь о площади продольной арматуры в верхней части сечения балки или в нижней части, мы подразумеваем суммарную площадь арматурных стержней, расположенных в углах сечения и расставленных вдоль грани. Такое обобщение позволяет упростить анализ в ущерб точности и подробности. Для детального рассмотрения теоретического армирования, подобранного для каждой площадки сечения, следует воспользоваться диалогом «Армирование балки». Окно диалога (см. рис. 5) содержит таблицу, в которой перечислены все сечения всех конечных элементов экземпляра балки. Имеется возможность поочерёдно выбирать различные экземпляры балок, отнесенных к данной марке и просматривать теоретическое армирование.

Рис. 5.png

Рис. 5.

Можно видеть все показатели, либо только агрегированные данные для экспресс-анализа. Существует опция «Диаметры вместо площадей», которая позволяет включить такой режим отображения, при котором в ячейках таблицы будет указано количество и диаметр стержней, обеспечивающих расчётную площадь. Опции отображения информации в таблице переключаются в контекстном меню, доступном по щелчку правой кнопки мыши.

Таблица служит удобным источником информации о требуемом по расчёту диаметре угловых стержней. Пользуясь приведенными в таблице данными можно уточнить параметры размещения продольной арматуры для инструмента «Армирование балки» : диаметр стержней в углах сечения, количество и диаметр стержней у соответствующей грани:

1.png

Затем повторное автоматическое размещение стержней с уточнёнными параметрами выполняется по нажатию кнопки:

2.png

Положение и свойства стержней, размещённых автоматически, можно затем скорректировать интерактивными графическими средствами. Для этого укажите модель армирования, щёлкнув, например, в эпюру продольного армирования. При этом на схеме армирования балки (рис. 6) подсвечиваются контрольные точки, с помощью которых можно перемещать вдоль балки начала/концы групп стержней, что влияет в итоге на эпюру фактического армирования.

Рис. 6.png

Рис. 6.

Для индивидуальной коррекции свойств можно указывать стержни как на схеме армирования, так и на сечениях или на 3D виде.

Рис. 7.png

Рис. 7.

Чтобы перейти к работе с видом «Разрез/сечение», укажите требуемое сечение 1-1, или 2-2, или другое на виде «Армирование балки» и выполните двойной щелчок мышью. В результате открывается вид «Разрез 1-1» или другой, соответствующий, в отдельном окне. На этом виде можно указывать продольные арматурные стержни, обозначенные здесь закрашенными кружочками (см. рис. 7), и редактировать их свойства, используя обычные инструменты: окно «Свойства» для работы с группой указанных стержней или панель свойств инструмента «Арматурный стержень» для работы с отдельным стержнем.

Среди свойств стержня, доступных для редактирования, в частности, имеются параметры:

Привязка стержня – расстояние по горизонтали, на котором ось арматуры располагается от серединной плоскости балки. Соответствует координате X на сечении 1-1 (рис.7). Отрицательные значения уводят стержень влево от серединной плоскости, положительные – вправо.

Начало стержня – координата x1, измеренная от начала балки вдоль её оси на схеме армирования до начальной или самой левой точки арматурного прутка.

Конец стержня – координата x2, измеренная от начала балки вдоль её оси на схеме армирования до крайней правой точки арматурного прутка.

На 3D виде следует сделать соответствующие настройки параметров визуализации и параметров выделения указыванием. Следует включить режим «Арматура/Показать арматуру». Чтобы на 3D виде была видна арматура какой-либо балки, нужно, чтобы было установлено значение «Да» и параметру балки «Показывать арматуру в 3D», и параметру вида «Показывать арматуру». Если предварительно выделена балка или несколько балок, для которых нужно показать арматуру, можно сделать это одним нажатием кнопки:

3.png

Для удобства работы рекомендуется в настройках визуализации включить полупрозрачность элементов или каркасный режим. При работе с «полупрозрачностью» в настройках «Фильтра указывания элементов» следует выключить указываемость балки, чтобы иметь возможность указывать скрытые в её глубинах арматурные детали. Иначе будет выделяться балка целиком при каждой попытке выделить какой-либо элемент её «начинки».

Редактирование свойств выделенных стержней выполняется обычным способом с помощью диалога «Свойства». Контрольные точки, изображённые в 3D виде, дают возможность управлять положением и длиной выделенного стержня (см. рис. 8). Если перемещать контрольные точки на концах стержня, движение локатора ограничивается только вдоль выделенного стержня.

Рис. 8.png

Рис. 8.

Разумеется, любые изменения диаметров арматурных стержней и их положения вдоль балки приводят к соответствующей коррекции эпюр фактического армирования.

Итак, чтобы сформировать в САПФИР-ЖБК модель армирования балки и получить схему размещения арматуры, необходимо:
  1. Назначить балке материал, относящийся к категории «Железобетон», если такой ещё не назначен. 
  2. Назначить балке марку, если не назначена, любым способом: с помощью инструмента «Унификация балок» или просто в диалоге «Свойства». 
  3. Выделить балку и нажать кнопку «Заармировать» на вкладке «Армирование». 
 Наличие результатов расчёта и подбора арматуры не является обязательным условием для получения модели армирования.

Заметили ошибку? Выделите ее и нажмите Ctrl+Enter, чтобы сообщить нам.

  • 36K
Поделиться публикацией:

Олег Палиенко

Ведущий инженер-программист компании «ЛИРА САПР».
Разработка программных комплексов

Другие публикации этого автора


Комментарии

Написать